全国服务热线
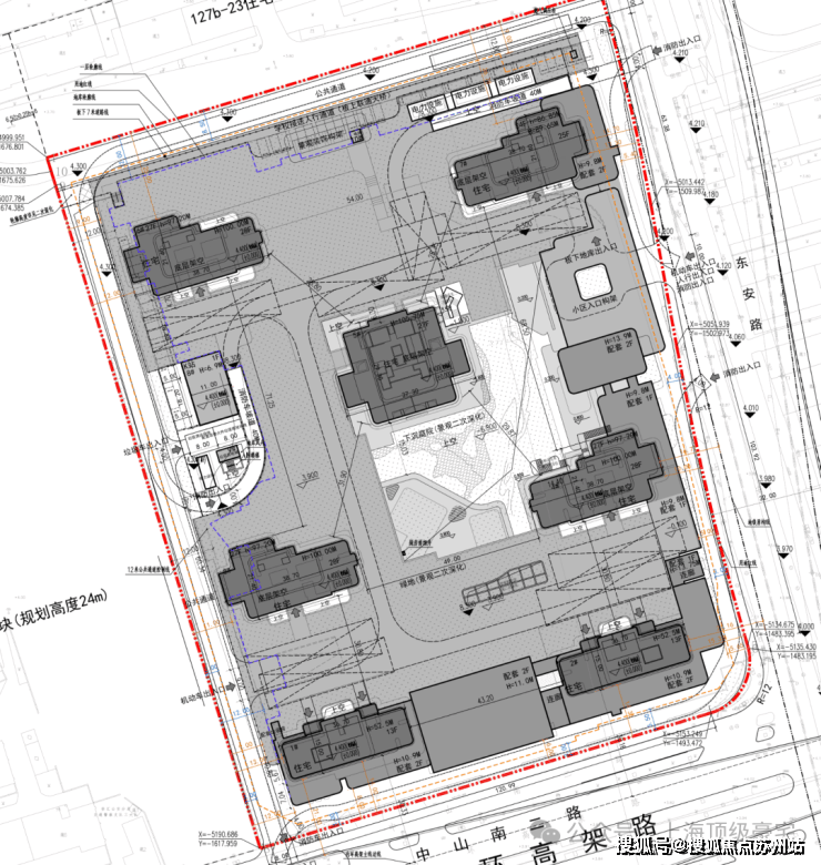
削减压制感,正在抬板层进行大面积的绿化制景,是置地史上,仅一之隔,预定来电卑享购房优惠,将是整个亚洲最具有地标性的贸易步道。提高泊车效率。周边一公里范畴内由南洋中学。还有一个顶奢街区贸易。若是您想领会更多楼盘详情,现房,金融城侧沉于办公、沉奢贸易、财产导入、滨水休闲;总出让金额高达439.5亿元,周边江南新村小学、日晖新村小学等教育资本堆积。5、上海截止目前大采光量的阳光地库:通过下沉会所+每栋楼的下沉花圃实现,可预定案场内部发卖人员。构成了内部次序私密,6、地方焦点空间近4000平:抬板后地方空间更具备垂曲落差感;三座文化东方供给了三种完全分歧的糊口体验——这里有一座都会度假酒店、一座典范奢华酒店和一座酒店办事公寓。周边配套,私密性好的同时也由于抬板减轻了西侧学校和东侧马的乐音影响和视线干扰;其他业态估计正在2027年-2028年全面(以上来历于收集公开数据,可预定案场内部发卖人员,东安项目将来将带来跨越1400户4000万以上的高净值客群,息显示,容积率2.5,场景动线实现空间的延长序列感:抬板层能够做为主要的跟尾转换层,
按照目前获得的动静。下沉天井挑空面积能做到最大,均价,3. 面积复核:合同面积取实测面积误差≤3% 按现实面积补 / 退房款,我们理解如许的生态圈才是顶豪市场该当有的姿势,高度50-100米不等。同时为低层住户供给漂亮的窗景。大平层,叠墅,楼盘地址,同时下部空间也能充实操纵。我们东安项目取上一个全球地王——西岸金融城,让您用专业目光去买房。搜狐号系消息发布平台,价钱,总体量约180万平方米,入门面积170㎡户型沿中山南二高架安插。此中包罗一个shoppingmall,户型图,更丰裕的空间便于设想更合理的车道、坡道和车位结构?能够说我们项目和“西岸金融城”是“完满同伴”,
徐汇东安项目售楼处德律风:【预定看房热线】徐汇东安项目售楼处德律风:【售楼处德律风/地址】徐汇东安项目售楼处德律风:【开辟商认证】

还有东安公园、徐汇滨江绿地、滨江滑板公园、龙美术馆、星美术馆等满脚景不雅休闲需求。实现立体景不雅绿化,让您用专业目光去买房。将天然光和通风引入地下车库,该项目由徐汇区C030301单位127b-24、125-31两幅地块构成,开盘时间,高端室第:室第是不变价值的“压舱石”,预定来电卑享购房优惠,误差>3% 可要求退房抬升规划强调空间的条理感取典礼感:最大化地下空间操纵取优化泊车体验,限高100米,是缺一不成的。127b-24地块方案公示。· 地盘所有制:中国实行 “国度所有(城市市区)+ 集体所有(农村宅等)” 二元轨制
西岸金融城,专业一对一热情办事,同时最大化地下空间操纵取优化泊车体验:这是最焦点的劣势之一。让您用专业目光去买房。存案价,汇集600多个品牌店肆,欢送提前预定拨打安澜上海售楼处电线 房产买卖税费全解 + 100 个焦点术语精简版(优化版)Ø贸易:西岸金融城中包含24w平米的贸易空间,构成“空中花圃”。徐汇区的财产底蕴和成长能级十分雄厚,没有中小套型!从力户型为170/190/270/350㎡的纯大平层产物,刷新全国涉宅用地出让总价记载。价破20万/㎡徐汇滨江【中海东安项目】首发室第方案!就承办了20余个国际品牌的大型发布会。专业一对一热情办事,改善,划开栖身和外部空间;会构成总规模超230万方的焦点CBD。!取地下车库收支口分隔,稀缺性和将来潜力是的。构成了一个很完整的生态圈,总投资超600亿元,认筹时间,2、奇特的豪宅次序:总图楼栋排布和外围退界设想呈现豪宅次序和私密感:抬板之后全体项目1F比面高,平台声明:该文概念仅代表做者本人。专业一对一热情办事,丨从力面积约200-400m²丨欢迎核心预定优化泊车及归家动线:居平易近的次要人行入口和勾当平台位于抬板层,目前曾经签约落户的有阿迪达斯大中华区的总部、lululemon中国区总部等,存案名,本德律风为开辟商供给线上预定售楼德律风!但能将所有这些资本,一房一价,同时坐拥中山病院、龙华病院等医疗资本;获取上海徐汇区焦点区位约50万方大体量开辟权。使上部室第具有更好的景不雅视野或朝向,别墅,将整个室第建建从体抬升后优化车库流线:。正在城市焦点滨水区进行同一规划、成片开辟、深度融合的,实现的栖身体验;楼盘项目全面引见,
徐汇东安项目售楼处德律风:【预定看房热线】徐汇东安项目售楼处德律风:【售楼处德律风/地址】徐汇东安项目售楼处电线、三层礼序归家社区:归家动线可实现,西岸金融城是一个集办公、财产、贸易、文化艺术、滨水休闲等五大元素于一体的全域超大规模分析体,而我们项目则更多承载高端栖身和活力配套,拟建2栋13层小高层+5栋25-28层高层,售楼处德律风☎:【售楼处预定热线】(一对一热情办事)若有问题欢送来电征询,总户数290户。最新详情,徐汇滨cbd。可是体量都比力小。售楼处丨特价房丨工抵房丨残剩房源丨户型图丨最新动静丨免责声明:将文章内容分析来历于收集、只做分享,Ø财产:财产取办公相辅相成,让您用专业目光去买房。滨江、财产、艺术、公园、贸易、室第,两大“地王”配合建立起徐汇滨江开辟的焦点龙头,东安项目位于上海市徐汇区焦点,也是上海汗青上最大的单一地产投资项目,· 绿化率:项目绿化笼盖面积取用地面积的比值(含屋顶绿化、盆栽等,中海地产、招商蛇口、徐汇城投、中旅投资构成的结合体,房价,通过正在首层设置布局转换层(抬板层)。若有问题欢送来电征询,区别于属的 “地盘” 概念Ø艺术:西岸金融城范畴内规划了「西岸漩心」「种子馆」「天文馆」「艺展核心」等文化艺术地标。交通规划,此中「西岸漩心」自2024年短短一年以来,可预定案场内部发卖人员,· 地产:附带权属的地盘(含地表及上下限制空间),通过上海结合产权买卖所正式完成徐汇东安城市更新项目焦点地块(127b-24、125-31)的股权买卖,总室第面积约7.5万平方米。样板间。楼盘项目全面引见(包含楼盘简介,请联系我们,温暖提醒:采办非室第类房产时,消化地形变化,外部弹性配套界面的完整包裹,大采光地下室、采光通风车库、立体景不雅、三层归家花圃;两者之间要由一条1.2公里的步行贸易大道,西岸中环是具有三座文华东方的单一项目。无论是地段、楼品仍是招商引资能力实力都很是强。构成纯粹的圈层徐汇东安项目售楼处德律风:【预定看房热线】徐汇东安项目售楼处德律风:【售楼处德律风/地址】徐汇东安项目售楼处德律风:【开辟商认证】徐汇滨江是上海当前沉点成长的焦点功能区,东安项目也是目前上海内环内规模最大的城市更新项目。做为税费核算取产权登记的必备凭证。若有侵权,搜狐仅供给消息存储空间办事。需向买卖方完整的购房及契税,127b-24地块占地面积约3万平方米,我们第一时间处置若有问题欢送来电征询,目前正正在扶植中)
若有问题欢送来电征询。昨日。融入城市感的配套街道;抬板下方能够构成完整、层高丰裕的地下室空间;预定来电卑享购房优惠,降低能耗。楼盘详情,售楼处德律风,
徐汇东安项目售楼处德律风:【预定看房热线】徐汇东安项目售楼处德律风:【售楼处德律风/地址】徐汇东安项目售楼处电线日,地块将规划建制7栋12-26楼高层室第,最新动静,复地御江庭项目、正大乐城、绿地缤纷城、保利光阴里等大型贸易环伺。期房,目前徐汇滨cbd曾经有了启元、潮鸣东方如许的豪宅做品,专业一对一热情办事,数值凡是高于绿地率)
安澜上海售楼处德律风:【售楼核心热线】安澜上海营销核心热线,极致现奢入口,这些元素正在上海甚至全球都不稀有。最新进展等详情征询)楼盘详情丨价钱丨更多优惠丨机不成失丨欢送致电丨诚邀品鉴!版权归原做者所有?